Цена:
232290
Артикул:
ИО 6.01.03-03
Песочный дворик большой ИО 6.01.03-03 (коты)
| Возрастной фильтр: | Младший возраст |
| название из excel прайса: | Песочный дворик Большой (коты) |
| Вес, кг: | 229,30 |
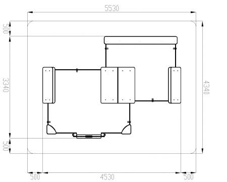
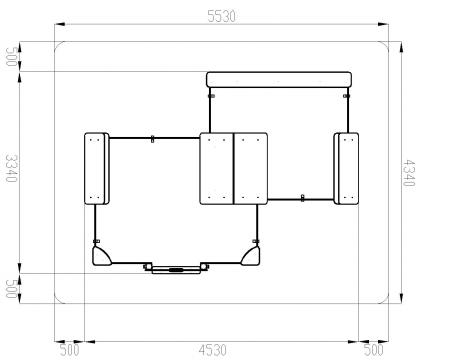
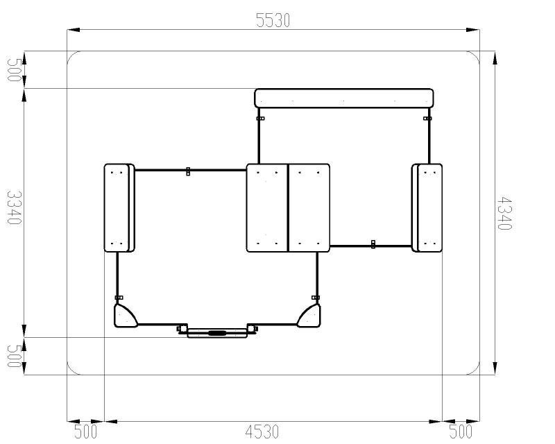
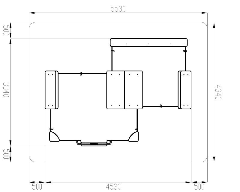
| Зона безопасности, мм: | 5340х6530 |
| Принт: | Коты |
| Длина, мм: | 3340 |
| Ширина, мм: | 4530 |
| Высота, мм: | 2000 |
| Возрастные ограничения: | до 14 лет, весом не более 70 кг |
| Объем, м3: | 0,43 |

