Цена:
603990
Артикул:
УО020
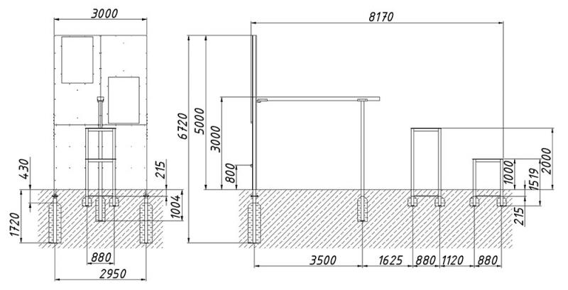
Длина:
8170
Высота:
5000
Ширина:
3000
Внушительная высота данного препятствия достигает 5 метров, ширина 3 метра. Фасад оснащен двумя проемами-окнами размером 1000х1500 мм, съемным и стационарным опорными брусьями. Ширина подоконников 0,15 м.
К «Фасаду» на высоте 3 м примыкает балка из клееного бруса длиной 4 м. На расстоянии от конца балки устанавливаются две разновысокие тумбы высотой 2 и 1 м.
| Вес, кг: | 1276 |
| Габариты (ШхДхВ): | 3000х8170х5000 |
| Артикул: | УО020 |

